Residentie Eglantier beschikt over 72 ruime serviceflats.
U wil graag comfortabel wonen maar wat kleiner dan vandaag? Perfect !
Of wil u liever ruimer blijven wonen ? Ook dat is geen probleem daar de residentie over 7 types aan appartementen beschikt, van 70 m² tot 110 m² groot.
U bent thuis ! De inrichting van uw appartement doet u zoals u het wenst en met eigen meubelen.
Onze ondergrondse parkeergarage brengt u met de lift rechtstreeks naar uw verdieping.
Bovendien beschikken wij over 3 uitgeruste gastenkamers.

Elk appartement is tenminste voorzien van:
Alle sanitair alsook de slaapkamer zijn telkens uitgerust met een centraal oproepsysteem met een 24/7 permanentie in de residentie.
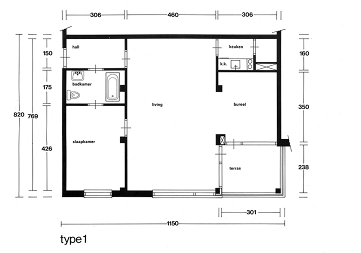
Het type 1 appartement betreft een groot appartement van ongeveer 98 m² en omvat:
Het type 2 appartement betreft een groot appartement van ongeveer 98 m² en omvat:
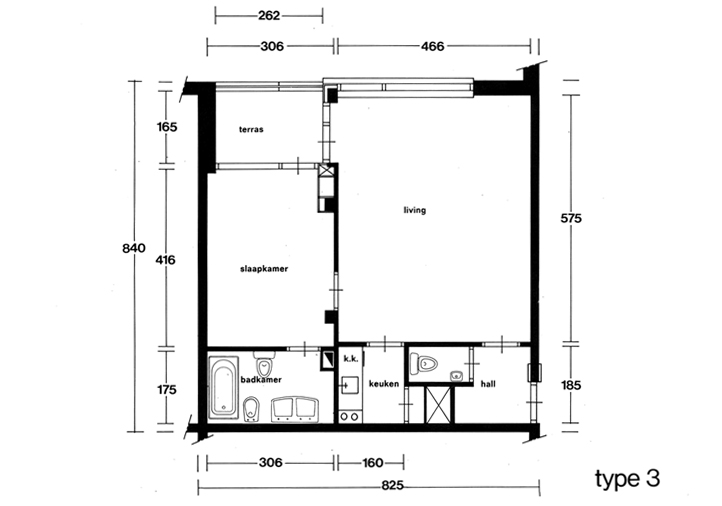
Het type 3 appartement betreft een klein appartement van ongeveer 73 m² en omvat:
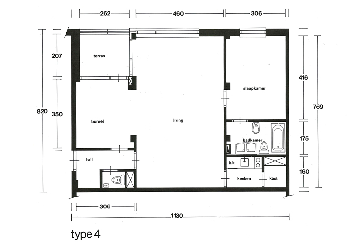
Het type 4 appartement betreft een groot appartement van ongeveer 96 m² en omvat:
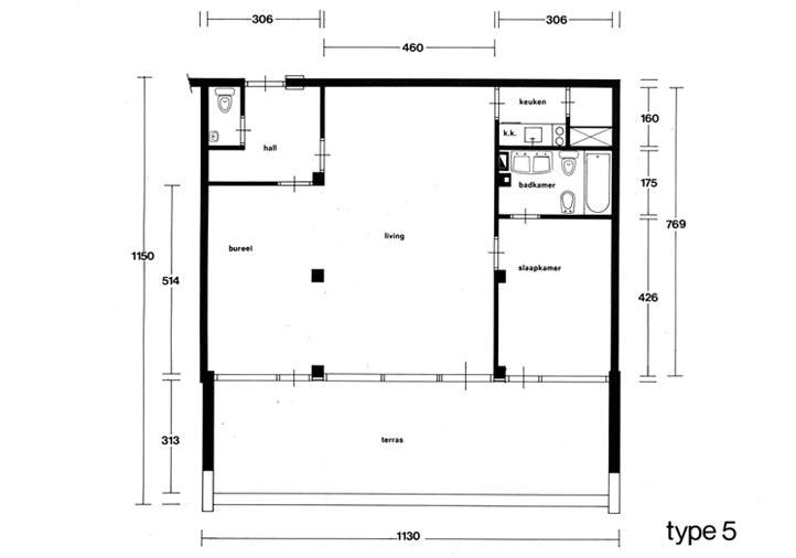
Het type 5 appartement betreft een groot appartement van ongeveer 90 m² met een ruim terras en omvat:
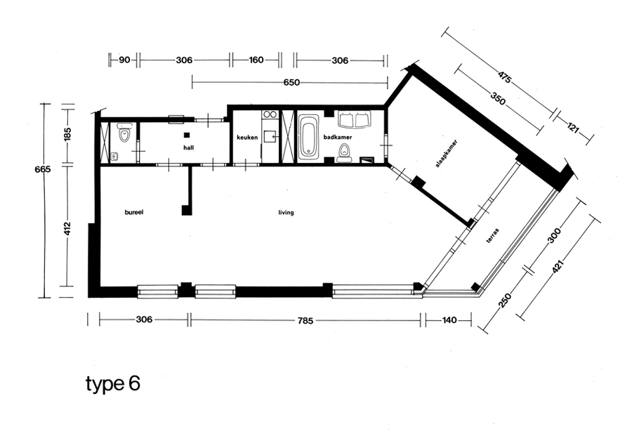
Het type 6 appartement betreft een groot appartement van ongeveer 110 m² en omvat:
Het type 7 appartement betreft een groot appartement van ongeveer 98 m² en omvat: